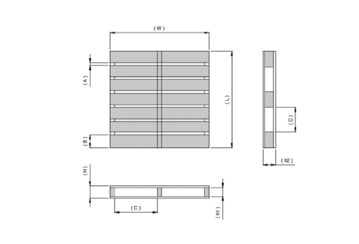
제품


(단위 : mm)
| 품명 | 외곽 사이즈 | 중량(㎏) | 데크구성 | A | B | C | D | h | h2 | |||
|---|---|---|---|---|---|---|---|---|---|---|---|---|
| 폭(W) | 길이(L) | 높이(H) | 상단 | 하판 | ||||||||
| 슬리브타입 [SL 120] |
1,100 | 1,100 | 120 | 16.7 | 7 | 3 | 49 | 115 | 482 | 280 | 95 | 74 |
| 1,000 | 1,200 | 16.5 | 66 | 382 | ||||||||
| 1,100 | 1,300 | 19.1 | 8 | 54 | 482 | |||||||
| 슬리브타입 [SL 135] |
1,100 | 1,100 | 135 | 19.9 | 7 | 3 | 49 | 115 | 482 | 280 | 115 | 92 |
| 1,000 | 1,200 | 19.8 | 66 | 382 | ||||||||
| 1,100 | 1,300 | 22.4 | 8 | 54 | 482 | |||||||
| 스트링어타입 [SL 140] |
1,100 | 1,100 | 140 | 12.7 | 6 | 3 | 58 | 135 | 482 | 280 | 114 | 92 |
*표기 중량은 설계 중량입니다